NORTHALLERTON, NORTH YORKSHIRE, DL7 8YR

£240000

SALEAGREED
Previous
Next

Property Details

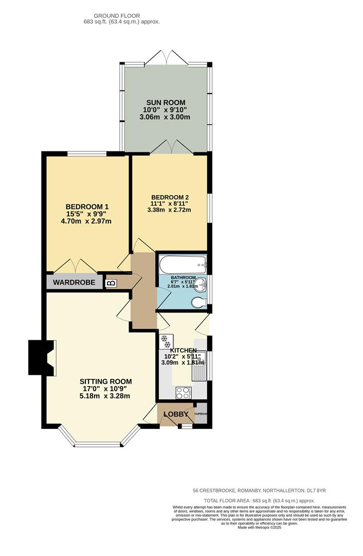
WELL PRESENTED TWO BEDROOM DETACHED BUNGALOW, WITH GARAGE, IN A POPULAR RESIDENTIAL AREA OF NORTHALLERTON WITHIN WALKING DISTANCE TO TOWN AND MAINLINE TRAIN STATION.

Number of Bedrooms: 2

Key Features

    Join our mailing list

    We will only send you details on
    similar properties


    Interested in this property?

    Call us on 01609 771959